PUBBLICAZIONI

 

“Bioarchitettura" - Editrice Universitaria Weger Aprile 2010 n. 62

Casa di riposo, Assisi

“Il Nuovo Cantiere” Aprile 2009 n. 3

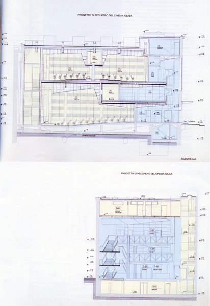
Nuovo Cinema Aquila

“AR” Bimestrale dell’Ordine degli Architetti di Roma e Provincia n. 81/09 Gennaio-Febbraio 2009

Concorso Internazionale di Progettazione “Campidoglio Due”

“AR” Bimestrale dell’Ordine degli Architetti di Roma e Provincia n. 80/08 Novembre-Dicembre 2008

Nuovo Cinema Aquila

“ADI DESIGN INDEX 2008”” Editrice Compositori

Lavello da cucina a incasso SINPHONIA PD862KITS Apell

ADI DESIGN INDEX 2008 Editrice Compositori Lavello da cucina a incasso SINPHONIA PD862KITS Apell
ADI DESIGN INDEX 2008 Editrice Compositori Lavello da cucina a incasso SINPHONIA PD862KITS Apell ADI DESIGN INDEX 2008 Editrice Compositori Lavello da cucina a incasso SINPHONIA PD862KITS Apell

“La Casa dei Cittadini” – Collana Concorsi

Concorso internazionale di progettazione “Campidoglio Due” – Catalogo della mostra Casa dell’ Architettura 2 – 9 Febbraio 2009

“Progetti e Concorsi” supplemento al n. 24 Anno XIII 16-21 Giugno 2008 del mensile “Edilizia e Territorio”

Campidoglio Due – La Casa dei Cittadini Roma, Roma

Progetti e Concorsi - Campidoglio Due – La Casa dei Cittadini Roma, Roma

“Roma La Nuova Architettura” di Giorgio Ciucci, Francesco Ghio, Piero Ostilio Rossi; fotografie di Andrea Temolo; Electa

Centro Stampa dell’Agenzia Romana per la preparazione del Giubileo nell’ex Cinema Castello (2007)

Roma La Nuova Architettura

“Roma - Il futuro è in cantiere” di Diana Alessandrini, prefazione di Walter Veltroni, Edilazio Oltre la Città Storica, Le Periferie: Identità da ritrovare

Nuovo Cinema Aquila, Roma

“RM ’06’ ” Roma - Architettura Contemporanea di Maria Rita Censi - Dante Frontero - Angelo Germani - Edizione Kappa

Nuovo Cinema Aquila, Roma

“AR” Bimestrale dell’Ordine degli Architetti di Roma e Provincia n. 59/05 Maggio-Giugno 2005 Roma Speciale Periferie

Recupero funzionale dell’ex Cinema Aquila, Roma

“Design Magazine Entratainment” Giugno 2005

Nuovo Cinema Aquila, Roma

“AR” Bimestrale dell’Ordine degli Architetti di Roma e Provincia n. 47/03 Maggio-Giugno 2003 Il Nuovo Auditorium dell’Accademia dei Lincei - Roma

Centro Stampa per il Giubileo, Roma

“Metropolis” n. 2 - Febbraio 2002

Centro Stampa per il Giubileo, Roma

“Palazzo dell’ Acquedotto Pugliese“ di Maria Paola Maino e Giancarlo Pediconi

De Luca Editore – Novembre 2001 – Palazzo delle Acque, Bari

Palazzo dell’ Acquedotto Pugliese - di Maria Paola Maino e Giancarlo Pediconi

“Abitare” n. 408 - Luglio Agosto 2001

Centro Stampa per il Giubileo, Roma

“Solo Interni” n° 4 - Maggio 2001

Centro Stampa per il Giubileo, Roma

“Guida di Roma Moderna dal 1870 ad oggi”

Edizione De Luca - 2001 - Bibliografia dello studio

Guida di Roma Moderna dal 1870 ad oggi

“L’Arca” n° 151 - Settembre 2000

Centro Stampa per il Giubileo, Roma

“L’Arca” n° 151 - Settembre 2000

Centro Stampa per il Giubileo, Roma
“L’Arca” n° 151 - Settembre 2000

Centro Stampa per il Giubileo, Roma“L’Arca” n° 151 - Settembre 2000

Centro Stampa per il Giubileo, Roma “L’Arca” n° 151 - Settembre 2000

Centro Stampa per il Giubileo, Roma“L’Arca” n° 151 - Settembre 2000

Centro Stampa per il Giubileo, Roma “L’Arca” n° 151 - Settembre 2000

Centro Stampa per il Giubileo, Roma“L’Arca” n° 151 - Settembre 2000

Centro Stampa per il Giubileo, Roma “L’Arca” n° 151 - Settembre 2000

Centro Stampa per il Giubileo, Roma“L’Arca” n° 151 - Settembre 2000

Centro Stampa per il Giubileo, Roma “L’Arca” n° 151 - Settembre 2000

Centro Stampa per il Giubileo, Roma“L’Arca” n° 151 - Settembre 2000

Centro Stampa per il Giubileo, Roma “L’Arca” n° 151 - Settembre 2000

Centro Stampa per il Giubileo, Roma“L’Arca” n° 151 - Settembre 2000

Centro Stampa per il Giubileo, Roma

“Deutsche Bauzeitung“ n. 134 - Giugno 2000

Centro Stampa per il Giubileo, Roma

“Habitat Ufficio” n° 100 - Maggio 2000

Centro Stampa per il Giubileo, Roma

Habitat Ufficio - Centro Stampa per il Giubileo, Roma
Habitat Ufficio - Centro Stampa per il Giubileo, Roma Habitat Ufficio - Centro Stampa per il Giubileo, Roma Habitat Ufficio - Centro Stampa per il Giubileo, Roma Habitat Ufficio - Centro Stampa per il Giubileo, Roma

“Travertino Romano” n° 5 - Marzo 2000

Centro Stampa per il Giubileo, Roma

“ Concorso europeo 50 chiese per Roma 2000” - Ottobre 1994

Chiesa SS. Cirillo e Metodio, menzione - Edizione Grafiche Zanini

“ Architettura per lo spazio sacro” Settembre - Ottobre 1996

Mostra Internazionale di Architettura per lo spazio sacro - Bologna - Edizione Umberto Allemandi & C.

“Expo Universale Sevilla 92 - Sezione Italiana”

Commissariato Generale per l?esposizione Universale

Expo Universale Sevilla 92 - Sezione Italiana

“Quale periferia per Roma Capitale?” Circolo culturale ACER

Secondo Concorso di Architettura - Editrice Gestedil - Dicembre 1991

“L'Arca edizioni - 4° Salon international de l'architecture - Techniques e Architecture”

Sintesi dell’attività professionale – Settembre 1991

L'Arca Edizioni - 4° Salon international de l'architecture

“Architecture mediterranèenne” n° 36 Aprile 1991

Azienda Telefoni di Stato, Mestre, Venezia

“Roma dal Rinascimento ai giorni nostri” - Dizionario dei monumenti italiani e loro autori Vittorio Sgarbi - Bompiani - 1991

Biografia dello studio

Roma dal Rinascimento ai giorni nostri

“Architectonicum - Immagini dall’architettura Italiana 1970-1990”

Soc. Italposte - Gruppo I.R.I. Mestre, Venezia - Centro Telecomunicazioni Mestre, Venezia

“15 Anni ISVEUR” supplemento al n. 4 Aprile 1989 del mensile “Costruttori Romani”

15 Anni ISVEUR

“L'Architettura Cronache e Storia” n.401 Marzo 1989

Centro Telecomunicazioni Mestre, Venezia

L'Architettura Cronache e Storia
L'Architettura Cronache e Storia L'Architettura Cronache e Storia L'Architettura Cronache e Storia L'Architettura Cronache e Storia L'Architettura Cronache e Storia L'Architettura Cronache e Storia L'Architettura Cronache e Storia L'Architettura Cronache e Storia L'Architettura Cronache e Storia

“L'Arca” n° 19 Settembre 1988

Centro Telecomunicazioni Mestre, Venezia

L'Arca - Centro Telecomunicazioni Mestre, Venezia
L'Arca - Centro Telecomunicazioni Mestre, Venezia L'Arca - Centro Telecomunicazioni Mestre, Venezia L'Arca - Centro Telecomunicazioni Mestre, Venezia L'Arca - Centro Telecomunicazioni Mestre, Venezia L'Arca - Centro Telecomunicazioni Mestre, Venezia L'Arca - Centro Telecomunicazioni Mestre, Venezia L'Arca - Centro Telecomunicazioni Mestre, Venezia L'Arca - Centro Telecomunicazioni Mestre, Venezia L'Arca - Centro Telecomunicazioni Mestre, Venezia L'Arca - Centro Telecomunicazioni Mestre, Venezia

“Roma, Storia, Immagini, Progetti” - Lo Studio Paniconi, Pediconi 1930-1984 di Alessandra Muntoni

Roma, Storia, Immagini, Progetti” - Lo Studio Paniconi, Pediconi 1930-1984

“Ingegneri Architetti” bimestrale anno XXXIV n. 3-4 - Maggio-Agosto 1984

Valorizzazione delle risorse idriche nel territorio dell’Alto Lazio

Ingegneri Architetti - Valorizzazione delle risorse idriche nel territorio dell’Alto Lazio

“Parole e Linguaggio dell'Architettura Religiosa 1963 – 1983”

Chiesa S. Antonio di Padova

Parole e Linguaggio dell'Architettura Religiosa - Chiesa S. Antonio di Padova
Parole e Linguaggio dell'Architettura Religiosa - Chiesa S. Antonio di Padova

“Architecture Contemporaine” 1980

Residenza bifamiliare Olgiata, Roma

“L'Architettura Cronache e Storia” n. 265 Novembre 1977

Chiesa parrocchiale a Cattolica, Forlì - Casa bifamiliare a Mostacciano, Roma

L'Architettura Cronache e Storia - Casa bifamiliare a Mostacciano, Roma
L'Architettura Cronache e Storia - Casa bifamiliare a Mostacciano, Roma L'Architettura Cronache e Storia - Casa bifamiliare a Mostacciano, Roma L'Architettura Cronache e Storia - Casa bifamiliare a Mostacciano, Roma L'Architettura Cronache e Storia - Casa bifamiliare a Mostacciano, Roma L'Architettura Cronache e Storia - Casa bifamiliare a Mostacciano, Roma L'Architettura Cronache e Storia - Casa bifamiliare a Mostacciano, Roma L'Architettura Cronache e Storia - Casa bifamiliare a Mostacciano, Roma LArchitettura Cronache e Storia - Casa bifamiliare a Mostacciano, Roma LArchitettura Cronache e Storia - Casa bifamiliare a Mostacciano, Roma LArchitettura Cronache e Storia - Casa bifamiliare a Mostacciano, Roma

“Autostrade” n. 11 Novembre 1971

Concorso per la Progettazione di massima dell’area di sosta e di servizio Via Antica Campana - sulla Tangenziale Est-Ovest di Napoli” a cura della ITALSTAT S.p.A.

“Domus” n° 499 Giugno 1971

Centro Telecomunicazioni Mestre, Venezia

“Autostrade Milano Bergamo” Studio per il raddoppio della sede in sopraelevata

PR.IN.CI. Progettazione Ingegneria Civilie - Roma Dicembre 1970

Autostrade Milano Bergamo - PR.IN.CI. Progettazione Ingegneria Civilie

“L'Architettura Cronache e Storia” n. 152 Giugno 1968

Concorso Complessi Parrocchiali a Roma - Tiburtino Sud

L'Architettura Cronache e Storia - Concorso Complessi Parrocchiali a Roma
L'Architettura Cronache e Storia - Concorso Complessi Parrocchiali a Roma L'Architettura Cronache e Storia - Concorso Complessi Parrocchiali a Roma

“Casabella” n° 321 Gennaio 1968

Palazzo per Uffici della Camera dei Deputati - Roma

Casabella - Palazzo per Uffici della Camera dei Deputati - Roma
Casabella - Palazzo per Uffici della Camera dei Deputati - Roma

“Valorizzazione delle Risorse idriche nel Territorio dell’Alto Lazio”

COMARCH - Regione Lazio

Valorizzazione delle Risorse idriche nel Territorio dell’Alto Lazio

 

C. e GC. PEDICONI R. MAGAGNINI ARCHITETTI ASSOCIATI - SEDE Piazza dei Caprettari 70 00186 Roma - TEL/FAX +39 066834005 - EMAIL ppm@pediconimagagnini.com

design by JB design