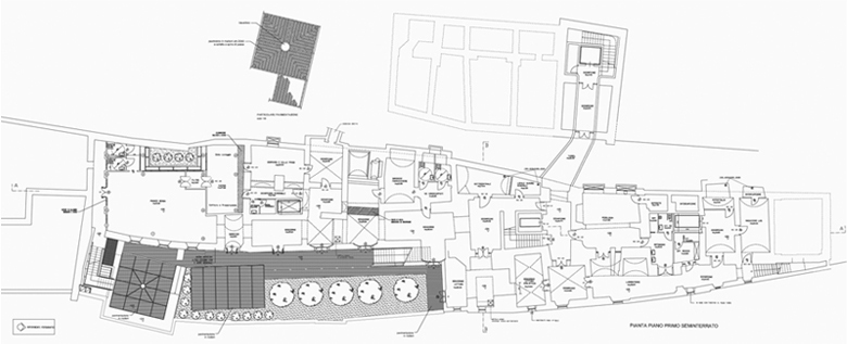
Casa di Riposo "A.Rossi", Assisi

Restauro e ristrutturazione di un isolato del centro storico di Assisi da adibire a casa di riposo per anziani. Il complesso comprende spazi all'aperto e servizi comuni, mensa, soggiorno, sale di ricreazione, bar. L'intervento di restauro conservativo si riferisce al ripristino delle facciate esterne nel rispetto della tipologia originaria.

Committente
Privato
Anno
1986-2002
Costo 600.000,00 Euro
Servizi Progetto di Massima, Progetto Esecutivo
  Realizzato
Coprogettisti Ing. O. Bellini
Casa di Riposo "A.Rossi", Assisi Casa di Riposo "A.Rossi", Assisi Casa di Riposo "A.Rossi", Assisi
Casa di Riposo "A.Rossi", Assisi

 

C. e GC. PEDICONI R. MAGAGNINI ARCHITETTI ASSOCIATI - SEDE Piazza dei Caprettari 70 00186 Roma - TEL/FAX +39 066834005 - EMAIL ppm@pediconimagagnini.com

design by JB design