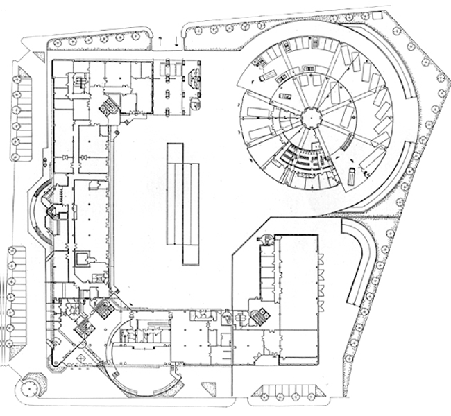
Centro Polifunzionale per i Servizi Operativi delle Aziende del Ministero delle Poste e delle Telecomunicazioni Mestre, Venezia

 

L'edificio polifuzionale contiene le funzioni legate all'esercizio e alla gestione dei servizi postali e di telecomunicazione e dei servizi direttamente offerti ai clienti. Il complesso e' localizzato nel centro della citta'. Nel sottosuolo sono collocati tutti gli impianti tecnologici, officine e autorimesse.

Committente
Italposte
Anno
1990-1992
Dimensione mc. 130.000
Costo 33.000.000,00 Euro
Servizi Progetto preliminare, definitivo, esecutivo, direzione artistica
  Realizzato
Centro Polifunzionale Poste, Mestre Centro Polifunzionale Poste, Mestre Centro Polifunzionale Poste, Mestre

Centro Polifunzionale Poste, Mestre Centro Polifunzionale Poste, Mestre

Centro Polifunzionale Poste, Mestre Centro Polifunzionale Poste, Mestre Centro Polifunzionale Poste, Mestre Centro Polifunzionale Poste, Mestre

Centro Polifunzionale Poste, Mestre Centro Polifunzionale Poste, Mestre

 

C. e GC. PEDICONI R. MAGAGNINI ARCHITETTI ASSOCIATI - SEDE Piazza dei Caprettari 70 00186 Roma - TEL/FAX +39 066834005 - EMAIL ppm@pediconimagagnini.com

design by JB design