Concorso Internazionale di Progettazione "Campidoglio Due", Roma

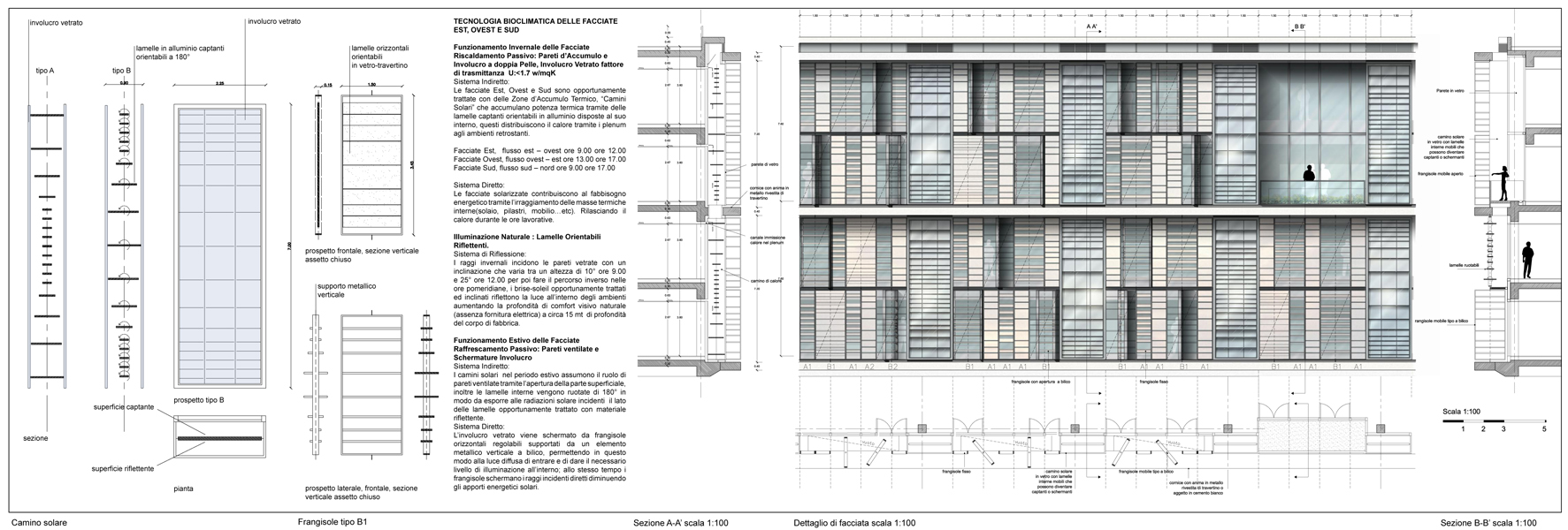
Il progetto di riqualificazione del comprensorio Ostiense prevede un sistema di spazi aperti (piazze, patii e verde) delimitati dai nuovi edifici per la nuova sede degli uffici del Campidoglio. La forma tipologica dei comparti e' a "corte aperta" la cui identita' architettonica viene riproposta nella concezione di un cordone di spazi verdi e gallerie, che uniscono e collegano edifici e servizi della nuova citta' amministrativa; il trattamento tecnologia e l'uso dei materiali quali il travertino e il vetro si propongono in termini di integrazione tra tradizioni romane e nuove tecnologie edilizie.

Committente
Comune di Roma
Anno
2007-2008
Dimensione mc. 625.000
Costo 170.000.000,00 Euro
Servizi Progetto Preliminare
  Concorso Internazionale di Architettura: 4° Classificato
Coprogettisti J.M. Wilmotte & Associès S.A.; Arch. Ivano Ferraro; Progettazione Strutturale: Studio Croci Associato S.r.l.; Progettazione Impiantistica: T.IM Progetti S.r.l.; Consulente per il progetto bioclimatico Prof. Valerio Calderaro
Concorso internazionale di progettazione Campidoglio Due Concorso internazionale di progettazione Campidoglio Due Concorso internazionale di progettazione Campidoglio Due
Concorso internazionale di progettazione Campidoglio Due Concorso internazionale di progettazione Campidoglio Due
Concorso internazionale di progettazione Campidoglio Due
Concorso internazionale di progettazione Campidoglio Due
Concorso internazionale di progettazione Campidoglio Due
Concorso internazionale di progettazione Campidoglio Due
Concorso internazionale di progettazione Campidoglio Due Concorso internazionale di progettazione Campidoglio Due
Disegni di studio - Concorso internazionale di progettazione Campidoglio Due
Disegni di studio - Concorso internazionale di progettazione Campidoglio Due
Disegni di studio - Concorso internazionale di progettazione Campidoglio Due

 

C. e GC. PEDICONI R. MAGAGNINI ARCHITETTI ASSOCIATI - SEDE Piazza dei Caprettari 70 00186 Roma - TEL/FAX +39 066834005 - EMAIL ppm@pediconimagagnini.com

design by JB design