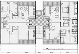
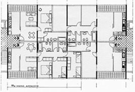
Quartiere Residenziale - Tor Bella Monaca, Roma

Quartiere residenziale con 600 alloggi per 3000 abitanti, con servizi commerciali e scolastici e verde attrezzato. Struttura in c.a., tamponature in pannelli in cemento armato prefabbricato, infissi in alluminio preverniciato.

Committente
I.S.V.E.U.R.
Anno
1983-92
Dimensione Mc. 150.000
Costo 26.000.000,00 euro
Servizi Progetto di massima, progetto esecutivo
  Realizzato
Coprogettisti Arch. P. Barucci (Capogruppo), Ing. E. Piroddi, Arch. M. Casanova, Arch. G. Ruspoli, Arch. M. Ianni, Arch. A. Bentivegna,
  Arch. M. Cascarano, Ing. F. Romanelli, Ing. F. Santolini, Arch. S. Delle Fratte, Arch. E. Dotto,
  Arch. M. Cippitelli, Ing. A. Santolini;
Quartiere residenziale - Tor Bella Monaca, Roma Quartiere residenziale - Tor Bella Monaca, Roma Quartiere residenziale - Tor Bella Monaca, Roma
Quartiere residenziale - Tor Bella Monaca, Roma Quartiere residenziale - Tor Bella Monaca, Roma
Quartiere residenziale - Tor Bella Monaca, Roma Quartiere residenziale - Tor Bella Monaca, Roma

 

 

C. e GC. PEDICONI R. MAGAGNINI ARCHITETTI ASSOCIATI - SEDE Piazza dei Caprettari 70 00186 Roma - TEL/FAX +39 066834005 - EMAIL ppm@pediconimagagnini.com

design by JB design