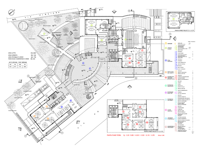
Ristrutturazione del Complesso Edilizio INARCASSA, Roma

Il progetto consiste nella riqualificazione ambientale, architettonica e funzionale di edifici esistenti da destinarsi alla nuova sede degli uffici nazionali dell' INARCASSA; sono previste la messa a norma, impiantistica e funzionale, il rifacimento delle facciate, la ridistribuzione funzionale degli spazi interni ed esterni, parcheggi, uffici, aule didattiche, sale conferenze, bar e servizi.

Committente
INARCASSA
Anno
2002
Costo 8.000.000,00 euro
Servizi Progetto preliminare
  Concorso Nazionale ad inviti su curriculum, 2° classificato
  Non realizzato
Coprogettisti Arch. M. Blasi, Arch. De Luca, Prof. Ing. G. Croci (progettazione strutturale)
  Ing. P. Pediconi (progettazione impianti)
Ristrutturazione del Complesso edilizio INARCASSA, Roma Ristrutturazione del Complesso edilizio INARCASSA, Roma Disegni di studio - Ristrutturazione del Complesso edilizio INARCASSA, Roma
Ristrutturazione del Complesso edilizio INARCASSA, Roma
Ristrutturazione del Complesso edilizio INARCASSA, Roma
Disegni di studio - Ristrutturazione del Complesso edilizio INARCASSA, Roma

 

 

C. e GC. PEDICONI R. MAGAGNINI ARCHITETTI ASSOCIATI - SEDE Piazza dei Caprettari 70 00186 Roma - TEL/FAX +39 066834005 - EMAIL ppm@pediconimagagnini.com

design by JB design