Complesso residenziale nell’area dell’ex Caserma Mazzini, Lucca

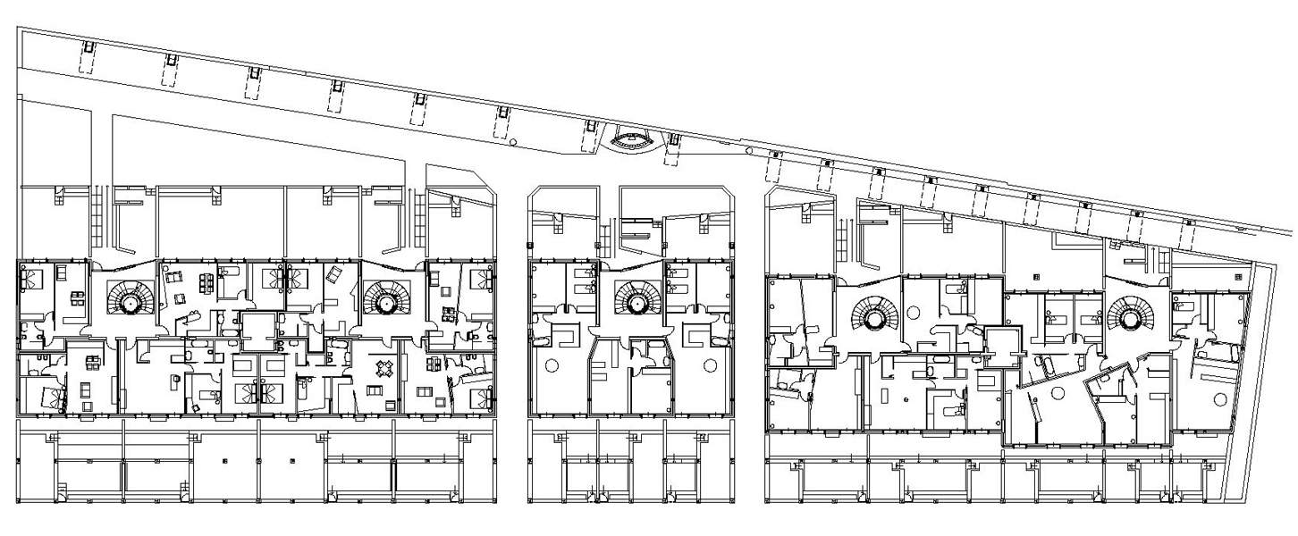
L’idea progettuale del recupero dell’area dell’ex Caserma Mazzini, è incentrata sulla trasformazione di questo terreno senza forma, in uno spazio concluso, “La Piazza”. A nord il complesso residenziale “I Cantici”, composto da tre diversi volumi accostati e a loro volta suddivisi planimetricamente e cromaticamente secondi gruppi di unità abitative con numero 70 appartamenti.

Committente
Polis S.p.a.
Anno
2005-2009
Dimensione Mq. 10.000
Costo 7.000.000,00 Euro
Servizi Progetto preliminare, definitivo, esecutivo, direzione artistica, progetto per la sicurezza
  Realizzato
Coprogettisti Arch. L. Lucchesi, Arch. G. Ricci
Complesso residenziale nell’area dell’ex Caserma Mazzini, Lucca Complesso residenziale nell’area dell’ex Caserma Mazzini, Lucca
Complesso residenziale nell’area dell’ex Caserma Mazzini, Lucca Complesso residenziale nell’area dell’ex Caserma Mazzini, Lucca
Complesso residenziale nell’area dell’ex Caserma Mazzini, Lucca Complesso residenziale nell’area dell’ex Caserma Mazzini, Lucca Complesso residenziale nell’area dell’ex Caserma Mazzini, Lucca
Complesso residenziale nell’area dell’ex Caserma Mazzini, Lucca Complesso residenziale nell’area dell’ex Caserma Mazzini, Lucca Disegni di studio - Complesso residenziale nell’area dell’ex Caserma Mazzini, Lucca Complesso residenziale nell’area dell’ex Caserma Mazzini, Lucca
Complesso residenziale nell’area dell’ex Caserma Mazzini, Lucca Complesso residenziale nell’area dell’ex Caserma Mazzini, Lucca Disegni di studio - Complesso residenziale nell’area dell’ex Caserma Mazzini, Lucca
Complesso residenziale nell’area dell’ex Caserma Mazzini, Lucca Complesso residenziale nell’area dell’ex Caserma Mazzini, Lucca Disegni di studio - Complesso residenziale nell’area dell’ex Caserma Mazzini, Lucca
Disegni di studio - Complesso residenziale nell’area dell’ex Caserma Mazzini, Lucca Disegni di studio - Complesso residenziale nell’area dell’ex Caserma Mazzini, Lucca
Disegni di studio - Complesso residenziale nell’area dell’ex Caserma Mazzini, Lucca

 

 

C. e GC. PEDICONI R. MAGAGNINI ARCHITETTI ASSOCIATI - SEDE Piazza dei Caprettari 70 00186 Roma - TEL/FAX +39 066834005 - EMAIL ppm@pediconimagagnini.com

design by JB design