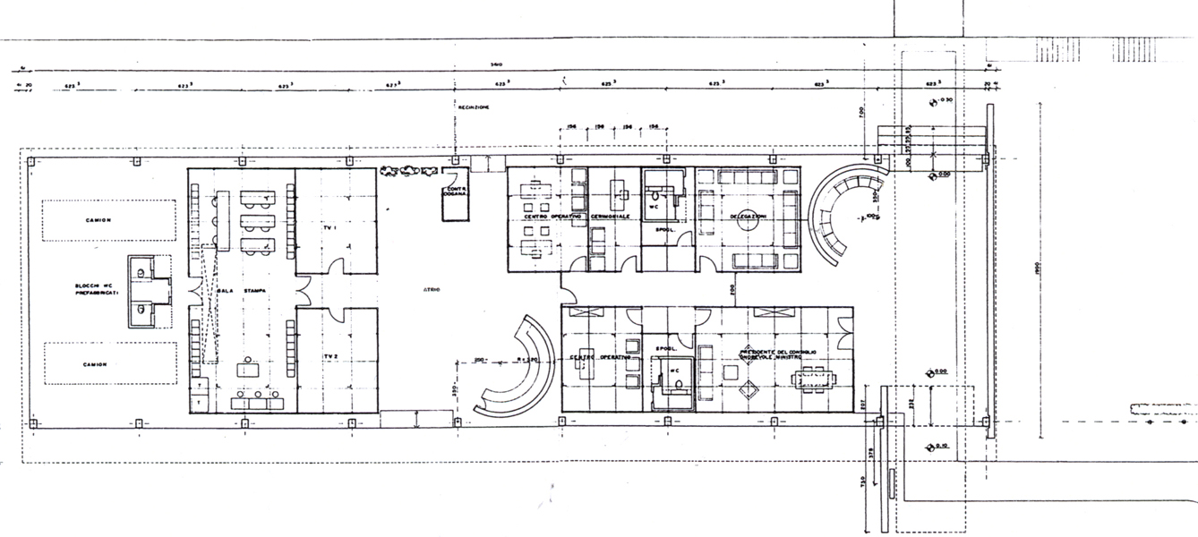
Padiglione per il Vertice Economico 1987, Venezia

Allestimento temporaneo del padiglione per il Vertice Economico 1987, costituito da sale stampa, ricevimento, uffici, servizi, bar; strutture e pannelli prefabbricati in alluminio.

Committente
Ministero degli Affari Esteri
Anno
1987
Dimensione Mc 3.000
Costo 2.052.956,00 Euro
Servizi Progetto di massima ed esecutivo
Realizzato
Padiglione per il Vertice Economico 1987, Venezia Padiglione per il Vertice Economico 1987, Venezia Padiglione per il Vertice Economico 1987, Venezia
Padiglione per il Vertice Economico 1987, Venezia Padiglione per il Vertice Economico 1987, Venezia

 

 

C. e GC. PEDICONI R. MAGAGNINI ARCHITETTI ASSOCIATI - SEDE Piazza dei Caprettari 70 00186 Roma - TEL/FAX +39 066834005 - EMAIL ppm@pediconimagagnini.com

design by JB design