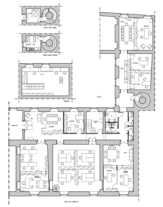
Restauro Edilizio Palazzo Lante, Roma

Restauro conservativo dell'antico Palazzo del XVI° sec. Architetto Giuliano da Sangallo. Ripristino delle facciate esterne con tinteggiatura, ristrutturazione interna, rifacimento tetti, nel rispetto delle tipologie originarie. Restauro di appartamenti al II° piano, con la realizzazione di pannelli di rivestimento in legno, pareti attrezzate, pareti divisorie, controsoffitti in policarbonato con elementi fissi e mobili, pavimenti flottanti.

Committente
Privato
Anno
1992-2001
Dimensione Mq 2.500
Costo 1.230.000,00 Euro
Servizi Ricerca storica, progetto definitivo, progetto esecutivo, programma economico e costi, direzione lavori
  Realizzato
Restauro edilizio Palazzo Lante, Roma Restauro edilizio Palazzo Lante, Roma Restauro edilizio Palazzo Lante, Roma Restauro edilizio Palazzo Lante, Roma
Restauro edilizio Palazzo Lante, Roma

 

 

 

 

C. e GC. PEDICONI R. MAGAGNINI ARCHITETTI ASSOCIATI - SEDE Piazza dei Caprettari 70 00186 Roma - TEL/FAX +39 066834005 - EMAIL ppm@pediconimagagnini.com

design by JB design