Restauro e Risanamento Strutturale di Villa Gori, I° lotto Massarosa (LU)

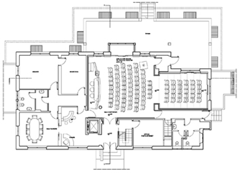
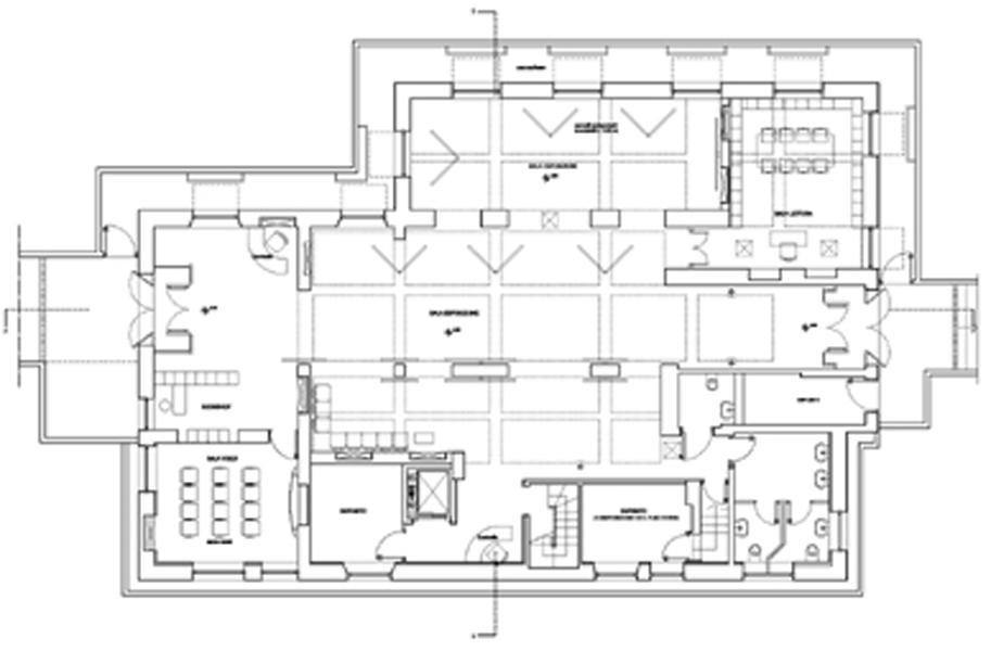
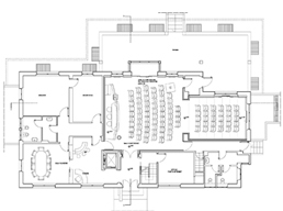
Il progetto prevede interventi di restauro conservativo e di consolidamento strutturale di fondazioni, solai. tetto, rispettando l’originalità del fabbricato nelle sue caratteristiche architettoniche con sala esposizioni al piano interrato, sala conferenze al piano terra , impianti e servizi a norma.

Committente
Comune di Massarosa
Anno
2007-2009
Dimensione Mq 4.000
Costo 1.000.000,00 Euro
Servizi Appalto-concorso con aggiudicazione miglior offerta con ATI Barsotti Costruzioni s.r.l.
Realizzato
Restauro e risanamento strutturale di Villa Gori, I° lotto Massarosa Restauro e risanamento strutturale di Villa Gori, I° lotto Massarosa Restauro e risanamento strutturale di Villa Gori, I° lotto Massarosa
Restauro e risanamento strutturale di Villa Gori, I° lotto Massarosa Restauro e risanamento strutturale di Villa Gori, I° lotto Massarosa Restauro e risanamento strutturale di Villa Gori, I° lotto Massarosa

 

 

C. e GC. PEDICONI R. MAGAGNINI ARCHITETTI ASSOCIATI - SEDE Piazza dei Caprettari 70 00186 Roma - TEL/FAX +39 066834005 - EMAIL ppm@pediconimagagnini.com

design by JB design